Opis:

Wymiennik z dwoma wężownicami do współpracy z kotłem c.o. oraz instalacją solarną Kospel SB-201 TERMO SOLAR o pojemności 200L
Jedną z najczęściej spotykanych metod podgrzewania wody jest zastosowanie wymienników i zasobników c.w.u. Są one przeznaczone do ogrzewania i przechowywania ciepłej wody przy współpracy z kotłami centralnego ogrzewania. Wbudowana wężownica lub płaszcz wodny przekazuje ciepło dostarczone z kotła do wody użytkowej. Stosowanie tych urządzeń ma szczególne uzasadnienie w rozległych instalacjach, gdzie należy zastosować cyrkulację.
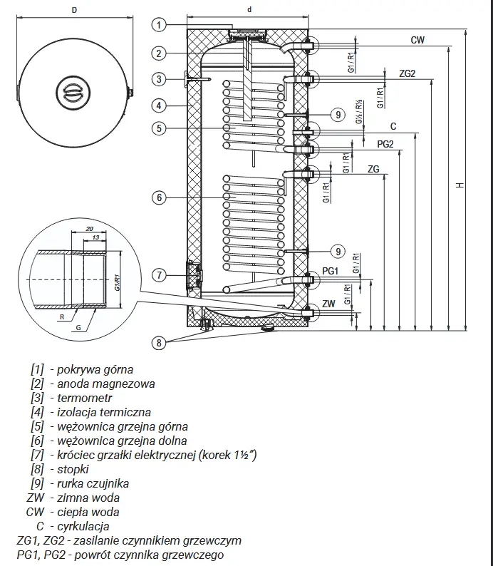
Budowa wymiennika ciepłej wody użytkowej
Głównym elementem wymiennika jest zbiornik stalowy, pokryty emalią ceramiczną. Firma Kospel podczas produkcji wymienników stosuje technologię emaliowania proszkowego. Największą zaletą tej technologii jest równomiernie pokrycie całej powierzchni zbiornika. Precyzyjnie dobrana warstwa emalii doskonale zabezpiecza blachę zbiornika przed korozją. To gwarancja najwyższej trwałości urządzenia oraz wieloletnie, bezawaryjnej pracy.
Najważniejsze zalety:
-
Zaawansowana technologia produkcji: Kluczowymi w procesie produkcji zbiorników są procesy spawania i emaliowania. Automatyzacja pozwala zachować pełna powtarzalność i precyzję wykonania. Zautomatyzowany system emaliowania zapewnia uzyskanie równomiernej powłoki o optymalnie dobranej grubości, która tworzy najwyższej jakości zabezpieczenie antykorozyjne.
-
Bezkonkurencyjna jakość: Wieloetapowy system kontroli jakości zaczyna się od wyboru odpowiednio wyselekcjonowanych gatunków stali dostarczanej przez sprawdzonych dostawców. W kolejnych etapach wszystkie zbiorniki przechodzą próby szczelności oraz kontrolę jakości powłoki emaliowanej.
-
Gwarancja 8 lat
Ważne! Zamontowanie i uruchomienie wymiennika oraz wykonanie instalacji towarzyszących należy powierzyć specjalistycznemu zakładowi usługowemu oraz ściśle stosować się do instrukcji montażu i obsługi wyrobu.
Zbiornik wyposażony jest w anodę magnezową, która tworzy dodatkowe aktywne zabezpieczenie antykorozyjne. Anoda jest częścią eksploatacyjną i ulega zużyciu. Stan anody należy sprawdzić raz na 12 miesięcy, a co 18 miesięcy anodę należy bezwzględnie wymienić.
Dane techniczne:
-
Pojemność znamionowa: 200 L
-
Ciśnienie znamionowe:
-
zbiornik: 0,6 MPa
-
wężownica: 1 MPa
-
Temperatura znamionowa: 80 ºC
-
Powierzchnia wężownicy górnej: 0,75 m²
-
Pojemność wężownicy górnej: 4,5 dm³
-
Moc wężownicy górnej: 22 kW*/7 kW**
-
Wydajność wężownicy górnej: 550 l/h*/175 l/h **
-
Powierzchnia wężownicy dolnej: 1,1 m²
-
Pojemność wężownicy dolnej: 6,4 dm³
-
Moc wężownicy dolnej: 32 kW*/ 10 kW**
-
Wydajność wężownicy dolnej 800 l/h*/250 l/h **
-
Anoda magnezowa M8 ᴓ33 450 mm
-
Wymiary (wysokość x szerokość): 1610 mm x 595 mm
*80/10/45ºC temp. wody grzewczej/ temp. wody zasilającej/ temp. wody użytkowej
**55/10/45ºC temp. wody grzewczej/ temp. wody zasilającej/ temp. wody użytkowej
Wyposażenie dodatkowe:
-
grzałka elektryczna GRW-1,4kW/230V w pojemnościach do 200 L
-
grzałka elektryczna GRW-2,0kW/230V w pojemnościach od 200 L
-
grzałka elektryczna GRW-3,0kW/230V w pojemnościach od 200 L
-
grzałka elektryczna GRW-4,5kW/400V w pojemnościach od 200 L
-
grzałka elektryczna GRW-6,0kW/400V w pojemnościach od 250 L
Podmiot odpowiedzialny za ten produkt na terytorium UE:
Podmiot odpowiedzialny:
KOSPEL Sp. z o.o., Olchowa 1, 75-136 KOSZALIN, kraj: Polska, telefon: 94 346 38 08, e-mail: doradcy@kospel.pl
Specyfikacja
| Typ |
Stojący |
| Podłączenie |
Dwie wężownice |
| Pojemność [L] |
200 |
| Miejsce instalacji |
Kotłownia |
| Klasa efektywności energetycznej |
B |